Warehouse to Rent in Castelfranco Veneto

Warehouse to Rent in Castelfranco Veneto

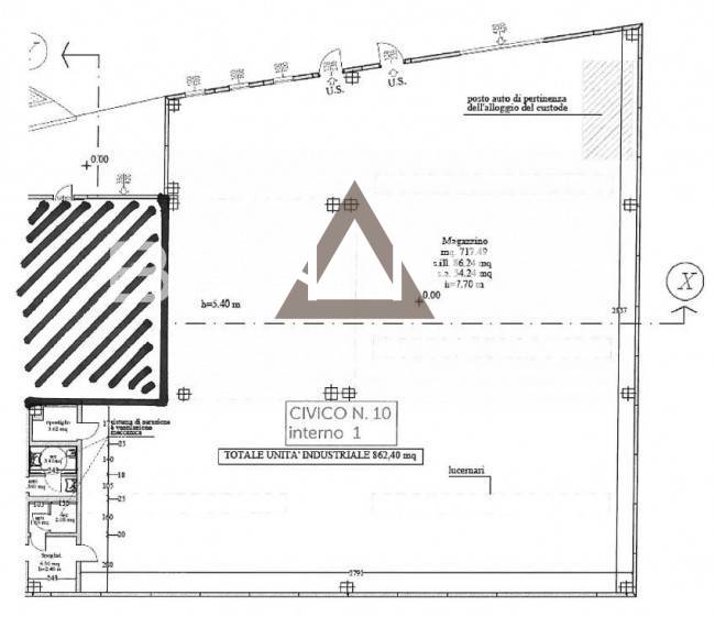
Address

VIA DELLA COOPERAZIONE, 10 Castelfranco Veneto

Price

4.000,00

Surface (sq m)

760

Reference

LB404