Building Plot for Sale in Riese Pio X
Building Plot for Sale in Riese Pio X
Address
Via kennedy, 37 Riese Pio X
Price
€139.000,00
Surface (sq m)
1200
Reference
BL023
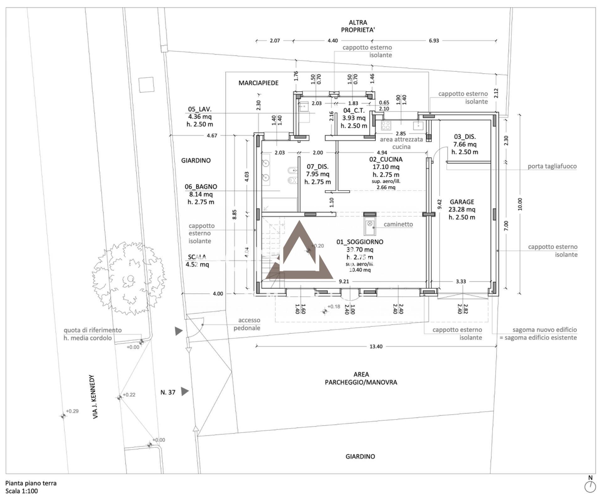
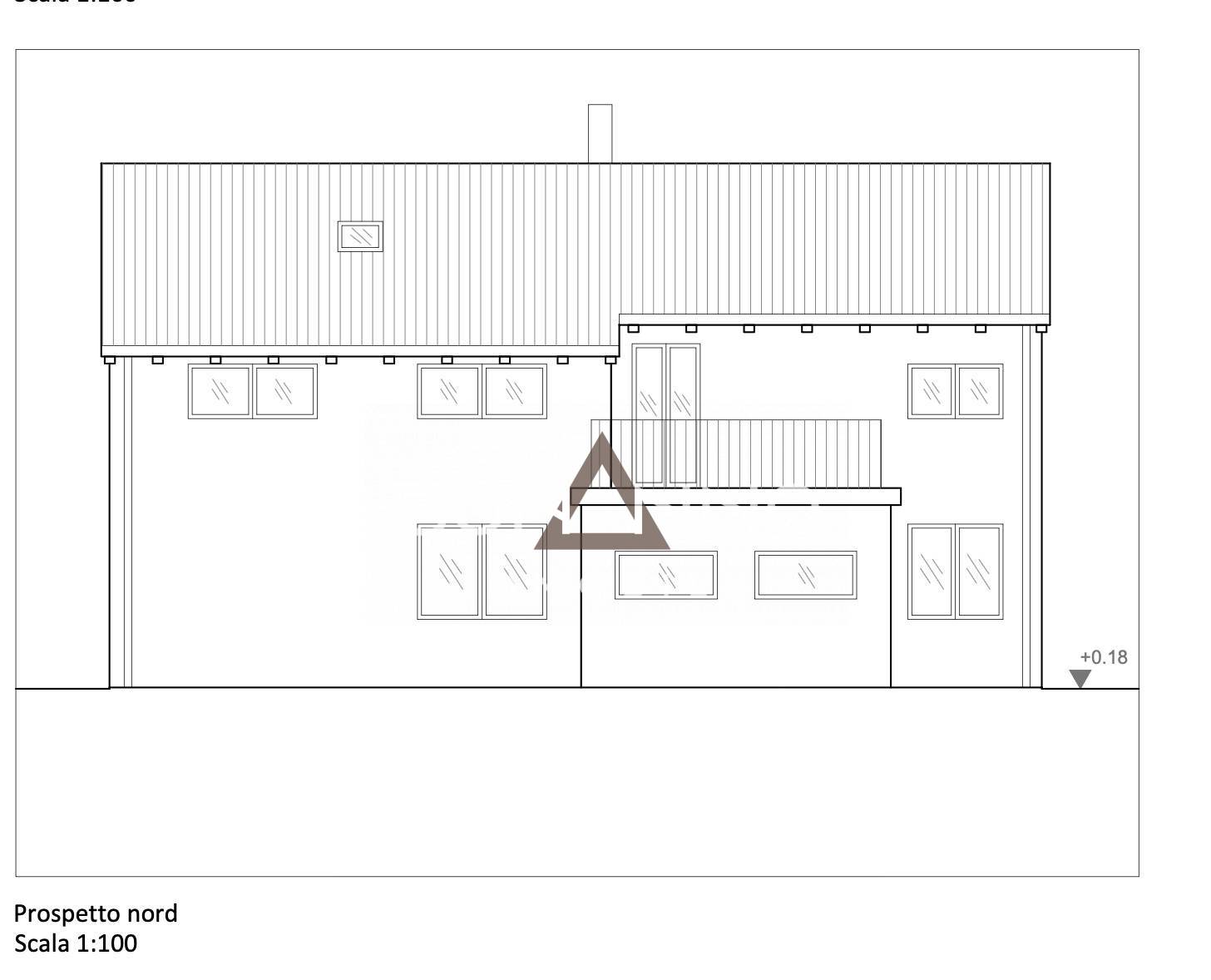
Bonanno Immobili offers for sale in Vallà di Riese Pio X a building plot of approximately 1200 m2, with 840 cubic meters of buildable space.
The old building on the land has already been demolished and the foundation slab has been created. All the costs for the construction of a single-family home have already been paid. We bring you photos of how the house was designed.
There is the possibility of using the house plan and having additional cubic meters available to possibly also build apartments.
For info code Bl 442










