Villette a schiera in vendita a Vedelago
Villette a schiera in vendita a Vedelago
Indirizzo
Via Luigi Pontello, Vedelago
Prezzo
€320.000,00
Camere
3
Bagni
3
Superficie (mq)
170
Tipologia
Villette a schiera
Riferimento
BL525
Bonanno Immobili propone in vendita a Vedelago un’elegante villetta a schiera in fase di costruzione.
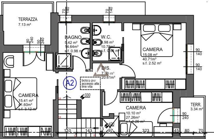
L’immobile ha una superficie totale di 170 mq, ideale per accogliere una famiglia numerosa o per chi desidera avere ampi spazi a disposizione.
-Al piano terra troviamo una luminosa cucina a vista, moderna ed elegante, che si integra perfettamente con il soggiorno, creando una zona living ampia e funzionale. Completa il piano terra un funzionale bagno per gli ospiti.
-Al piano primo troviamo tre spaziose camere da letto ed un bagno.
-Al piano interrato troviamo un garage doppio, una lavanderia ed una Taverna di 40mq.
L’immobile รจ situato in una zona tranquilla e ben servita, ideale per chi desidera vivere in un contesto residenziale ma comodo ai principali servizi.
Per maggiori info chiamare in agenzia 0423 1856238
Rif: BL525














































